(記事作成:2012年02月04日)
2010年の年末情報の中で気になる情報がありました。
遺留品の「ジャンパーに擦った痕が無い」そして、それ以前に出ていた「風呂場の窓に繊維が付着していなかった」の二つの情報は犯人が侵入したのは風呂場の窓ではないとする情報です。
1年越しですが、今回は風呂場の窓からの侵入は可能なのか?いついて考えてみたい。
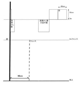
まず、位置関係を確認しておこう。
1)風呂場の窓は地上3mの場所にある。
2)風呂場の窓のサイズは高さ50cm、幅40cm
3)家の壁から90cmに公園の敷地との境界の高さ2mのフェンスがある。
4)風呂場の窓の近くに湯沸かし器の室外器がある。
図にするとこんな感じ(画像をクリックすると拡大表示します)

察の進入実験の様子はこんな感じだね。
公園の敷地と2メートルのフェンスで仕切られた、宮沢さん宅の高さ3メートルの壁面に、縦50センチ横40センチの浴室の窓がある。現場検証で、捜査幹部は公園側のツバキの赤い花びらと小枝が散らばっているのを不審に思っていた。地面に靴跡のようなへこみもあった。網戸も、フェンス外側に転がっていた。
その窓から入るのは不可能とみられていた。だが、身軽な捜査員が侵入を試みた。フェンスに上り、壁の湯沸かし器に左足を置く。窓枠を手で押さえ、右足から体を滑り込ませると、何とか入り込めた。網戸を外すと、同じ場所に落ちた。
この情報から私が推測する侵入の様子はこんな感じだね。



ポイント挙げると
A)窓枠を手で押さえたのなら、手袋をしていたら手袋痕、素手なら指紋、掌紋が残っているはず。
B)進入時に右足を窓に入れた後に窓の底辺に尻か太ももの裏で体重を乗せないと、左足を窓に入れる事はできないと思う。
つまり、痕跡を残さずに風呂の窓から進入する事はできないと言うのが私の印象です。
進入場所が風呂の窓だとする根拠とされる情報は今のところの報道では
あ)犯人の足跡の泥の量が2階の方が多い。(土足で歩き始めたのが2階では?と言う事ですね)
い)風呂の窓の近くの湯沸かし器の室外器に足を掛けたような跡があった。
う)身軽な捜査員が実験したところ、風呂の窓から侵入する事ができた。
これを見て分かるとおり、実は「窓から侵入した」事を直接裏付けるような情報ではないんだよね。
唯一、い)がそれに近い印象ですが、それだけです。
進入口については、「玄関」説もあるし、ことさらに「風呂の窓」にこだわる理由は無いんだけどね。
実は風呂の窓の問題は「逃走路」の方が問題だと考えています。
この点については次回考えてみたいと思います。

コメント
***旧ASKAの事件簿にいただいたコメントです***
1年ほど前、現場を 見に行ったことがありますが、かなり小さな窓であることに加え、あのフェンスは 、足の先を突っ込むことが できないほど網目が 小さいタイプだったと思います。上りづらいフェンスです。
なので、あの窓からの侵入を敢行したならば、犯人には かなりの 動機があったことでしょう。
単なる年末の不在を狙った物盗り なんかではなく、明確な目的意識の上での侵入。
それにしても 窓枠には 衣服の繊維の付着がなかったとのこと。 出るにしても、入るにしても、普通 付くと思いますが。あんな狭い枠を、えっちらおっちら 通り抜けるワケですから。 不思議な話です。
おまけに 浴槽には 切り刻んだ 書類をばらまいてますし。 推理小説家でも 思いつかない ことを やっていますね。 なにかのおまじないなのか、それとも 染料のチェックなのか….
話は飛びますが、現場の 西側にある仙川をはさんで、高台があり、住宅街となっています。
その丘から、被害者宅が 一望にできます。 犯人が、もし下見を しにきたことがあるのなら、おそらくこの丘から、犯行前に 現場を見下ろしたようなこともあったのでは…などと 思ったものです。
投稿: シュロ | 2012/02/05 00:56
窓近辺に侵入の痕跡があまりない。実は1Fから客?として宅内に
入ったかも?とも思える状況
でも
>あ)犯人の足跡の泥の量が2階の方が多い。(土足で歩き始めたのが2階>では?と言う事ですね)
となると
客人が(当然土足のわけはない)急に犯行を始める。一家全員を手にかけてからか、途中かは解らないですが、いったん靴を玄関までとりにいき、手に持ち2Fまであがり、そこで履く。となると思いますがなぜわざわざそんな事を?
私なら、急に逃走しなくては行けない状況になったり、だとか考え
玄関ですぐに履くと思います。
投稿: | 2012/02/05 14:12
私見ですが……
犯人はおそらく被害者と面識が会ったと思われる。時期が大晦日というあたり宿泊していたことも考えられますね。
接点としては近所のスケートボードの少年との抗争が始まりではないでしょうか?
ゆえに窓からの進入痕跡を残し外部犯に見せかける偽装なのでは?と考えます。
また犯人は生理用品での止血から見て、ボーイスカウトかあるいは軍事従事者が親類にいる等が考えられます。
これらから知能は低くないものの、激情に任せて犯行に及ぶあたり、少年である可能性が高いです。
ただ残されたDNAと遺物から見て、横須賀米海軍基地の軍事従事者の息子でないかと考えます。
殺害動機自体は口論の末によるものでしょうが、犯行発覚をおそれて口封じをしたと考えたのではないでしょうか?
またずさんな方法でも発覚する可能性を低く見積もったからであり、その根拠が米海軍基地で移動することを織り込んでいたからではないでしょうか?
おそらく警察も目星はついているが、手を出せないのかもしれません。
圧力に屈することなく犯人が早く捕まることを祈ります。
投稿: 読者 | 2012/02/05 18:44
本当に小窓から侵入したとしたら、侵入過程で靴が脱げて
下に落とすことをケアして靴を脱いで侵入したのかもしれない。
包丁一本、靴なし上着帽子マフラーなしの侵入
成り立つとしたら身の回り品を持ってくれる相棒が必要?
フェンスで二人分の身の回り品を持って順番を待つ相棒、
先に侵入したスラセンジャー男に、自分の身の回り品を渡して
侵入を試みる相棒
しかし、相棒が侵入に成功する前に発覚、口論、殺戮、
相棒は事件に関わらず逃走?
長居は相棒待ち?
投稿: アヒル | 2012/02/06 02:34
この記事で初めて進入経路(とされている風呂場の窓と公園フェンス・室外機)の位置関係を知りました。一瞬、頭から入ったのかと思いましたが、よほどでない限り無理ですねこれ。
計算するとフェンスのてっぺんから窓までの直線距離が約1.8mですから、180cm以上身長があってなおかつ脚が長くなければいけませんし…
あと、擦れた痕や繊維痕をのこさずに窓から出入り出来るとすれば、スキーウェアの様なポリエステル素材のズボンを穿いていたとかでしょうか。
傍観や激しい運動にはいいかもしれませんが、それでも強く押しつけたりすれば擦り痕くらい残りますよね。
全く根拠のない憶測ですが…
投稿: OZONE | 2012/02/06 14:27
ASKAさんへ
この事件を推理し、未解決事件「世田谷一家四人殺害事件」の推理 と題して自分のブログにて発表致しました。
ASKAさんのブログも大変参考にさせて頂きましたので、感謝しております。
「ベビールースの部屋」ttp://babyruth.cocolog-nifty.com/blog/
「ジャンパーに擦った痕が無い」は、侵入時に邪魔になりそうな帽子・ジャンパー・マフラー・手袋を脱いでリュックサックなどに詰めて侵入したのではないかと考えています。
「風呂場の窓に繊維が付着していなかった」は、他の方が指摘なされているように、繊維が付きにくい材質のズボンをはいていたと考えられます。
ジャンパーは脱いでいたので、ラグランシャツを窓枠に触れることなく侵入したのではないでしょうか。ただし、腕力と俊敏な運動神経が必要になってきます。
投稿: ベビールース | 2012/02/25 13:18
古い記事にコメントして申し訳ないです。
僕は犯人は被害者と同世代と考えてます。
若い犯人なら柳刃包丁よりも洋包丁を買うはずです。
(過去の若年層の犯罪の傾向から判断)
僕は被害者の小学生、中学、高校時代に面識のある人物だと考えてます。
ただ、被害者ご夫妻のどちら側かが問題です。
そのため、玄関から室内に招いてもらったのでは?と考えてます。
ヒップバックも被害者の持ち物だった場合、現在の捜査には問題が出てきます。
僕の推理では被害者が発見された時点で犯人は2階にまだいたと思います。
とっさに風呂場から逃げたのでは?と
ある程度の土地勘がないと不安で早く逃亡をすると思います。
それから、犯人は日本人だと思います。
外国人犯罪にしては丁寧な所が多い
投稿: マック10 | 2013/11/17 20:16
侵入経路は窓、玄関以外もあるよ。もちろんガレージではない。日本人正解率0.01%だが、日本人以外はほとんどわかる。
投稿: 盲点 | 2022/07/02 12:23
侵入経路は、完全なる密室。スリッパ履いた形跡あり、ガレージに痕跡、服が折りたたまれていた、ソファーで仮眠ではなくて、ヒップバッグに包丁入るのか、母親だってどこに泊まってたのか、手を負傷してバック置いて手ぶらで出ていくとは考えにくい、上着も無しで出ていくこともない、被害者の顔覆う身近な者の犯行、日本人じゃない、長居したのは軽い引っ越しだから、バックも上着も他に持ってる。日本人では考えもつかないが、日本にいる外人は常識。超新説。犯人は初めからここに住んでいたのだ。
投稿: 盲点 | 2022/07/03 23:22
裏切りかな。いずれにせよ犯行には外人の組織絡んでる。でなければ逃げられません。逃走先は徒歩圏内も十分に考えられます。そこら中アジトのようなもの。ウイークリーマンション、UR,賃貸で迷惑なのうるさいのとかドンドンやってくるの、みんなこれらですよ、ワンルームに4人とかで住んでます。2人仕事してて2人無職とか、この人らは福田のように時効寸前でも絶対に我慢できない人間ですから犯行後も大人しくしませんので、これらを、洗えば確保できたのではないでしょうか。暴力団も90%日本人じゃないので含む。
投稿: 盲点 | 2022/07/03 23:40
***ここまで***